





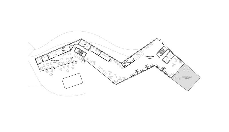
The development has a mix of one, two, and three-bedroom units that can be combined, as well as six exceptional duplex penthouses with private pools and fourteen four-bedroom private villas with private island and pools. This unique complex is complete with a world class spa and fitness club, a double height lobby with an adjacent beachfront dining restaurant, outdoor private massage cabanas, a full-size outdoor tennis court, and a sky garden on the 30th floor.